Το ΑΞΙΟΝ είναι ένα νέο εκπαιδευτικό συγκρότημα κατασκευασμένο το 2007-2008 και πρωτολειτούργησε όλες τις βαθμίδες του, 4 σχολεία και 14 τάξεις ταυτόχρονα, το σχολικό έτος 2008-2009.
Βρίσκεται σε φυσικό περιβάλλον και σε ιδιόκτητη έκταση 80 στρεμμάτων με 8 αυτόνομα κτίρια και δομημένους χώρους 6.000 m2 .
Περιλαμβάνει, 30 αίθουσες διδασκαλίας, 5 εργαστήρια, 3 βιβλιοθήκες, 7 γήπεδα, football, basket, volley, tennis beach volley, εστιατόριο 100 ατόμων, κυλικείο, αίθουσα πολλαπλών χρήσεων 220 m2– 150 θέσεων, ιατρείο, εκτυπωτικό τμήμα, εκθεσιακό χώρο και parking 200 θέσεων.
Μελετήθηκε, σχεδιάστηκε και κατασκευάστηκε με κάθε σύγχρονη εκπαιδευτική φιλοσοφία.
Λειτουργεί 4 ανεξάρτητα σχολεία, Νηπίων – Δημοτικό – Γυμνάσιο – Λύκειο με δυναμικότητα έως 550 μαθητών. Σήμερα εκπαιδεύει 180 μαθητές και το υπηρετούν 50 εργαζόμενοι ( 36 εκπαιδευτικοί όλων των ειδικοτήτων και βαθμίδων και 14 μέλη λοιπού προσωπικού ) και διαθέτει 8 λεωφορεία.
Είναι εξοπλισμένο τεχνολογικά και τεχνικά με δίκτυα, εργαστήρια μηχανολογικά, καλλιτεχνικά, ξυλουργικά κλπ και έχει αυτόνομη δυνατότητα σχεδιασμών και κατασκευών.
Είναι απόλυτα οικολογικό στη λειτουργία του, ανακυκλώνει τα πάντα και είναι το μοναδικό σχολικό συγκρότημα στην Ελλάδα που διαθέτει μονάδα βιολογικού καθαρισμού 3ης γενιάς, με αυτονομία ύδρευσης και αποχέτευσης που συμβάλλει και στην εξοικονόμηση νερού άρδευσης των φυτών του οικοπέδου.
Διαθέτει ελαιώνα με 100 δέντρα, αμπελώνα, οπωρώνα, θερμοκήπιο, λαχανόκηπους, βοτανικό κήπο, ορνιθώνα κλπ.
Η θέση τους επιλέχτηκε ώστε να εξυπηρετεί και τους 5 νομούς της Ανατολικής Μακεδονίας & Θράκης. Απέχει 10 λεπτά από την Ξάνθη, 30 λεπτά από την Κομοτηνή και 45 από την Καβάλα.
Βρίσκεται στον ανατολικό κόμβο Ξάνθης, της Εγνατίας οδού και απέχει 20΄ έως 40΄από δύο διεθνή αεροδρόμια, Καβάλας και Αλεξανδρούπολης .
Διαθέτει αθλητικές εγκαταστάσεις όλων των αθλημάτων.
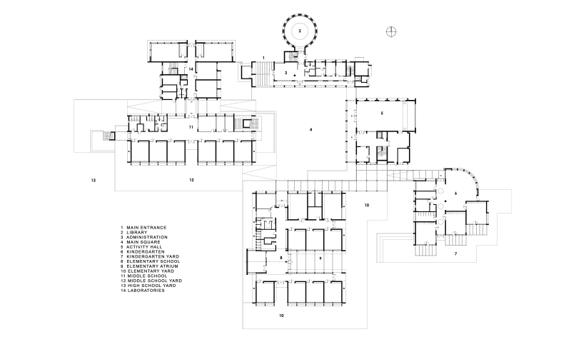
Ειδικότερα στοιχεία του έργου
Το συγκρότημα αποτελείται από ένα πλέγμα κτηρίων που προσανατολίζει τους χώρους των αιθουσών και τις αυλές προς τον Νότο. Με τον τρόπο αυτό πέρα από τον επιθυμητό ηλιασμό επιτυγχάνεται ταυτόχρονα η τρισδιάστατη αντίληψη των όγκων των κτηρίων που όντας υπό γωνία με τον δρόμο χαρίζουν στον παρατηρητή τη θέα δύο όψεων.
Η αυστηρή συνεκτική οργάνωση του συγκροτήματος γύρω από την Κεντρική Πλατεία, παραπέμπει στη δημιουργία μιας εκπαιδευτικής κοινότητας με κέντρο, που συνδέει όλα τα σχολεία. Είναι η πλατεία ενός σχολικού χωριού.
Ταυτόχρονα, το κάθε σχολείο, διαθέτει τους δικούς του ισόγειους ιδιωτικούς αύλειους χώρους και αποφεύγεται η όχληση για το άλλο σχολείο.
Τα διώροφα κτήρια τοποθετήθηκαν στο Βορρά δημιουργώντας προστατευτικό τείχος από τους βόρειους ανέμους της περιοχής για την πλατεία και τις αυλές.
Στην οργάνωση της κάτοψης δημιουργήθηκε σκόπιμα ένα πλέγμα διαμπερών οπτικών φυγών, είτε εσωτερικά μέσω των χώρων εκτόνωσης των κτηρίων, είτε εξωτερικά μέσω των ενδιάμεσων χώρων τους, με αποτέλεσμα να υπάρχει από κάθε σημείο των σχολείων η άμεση επαφή με τον ανοικτό ορίζοντα. Όλο το “εκπαιδευτικό αυτό χωριό” όντας σε περιβάλλον απαλλαγμένο από κάθε οπτική ρύπανση δεν βάζει φραγμούς στο μάτι και στη διάθεση των μαθητών κι εργαζομένων.
Οι μορφολογικές επιλογές στηρίζονται στην ισοβαρή κατανομή του εμφανούς σκυροδέματος, των ανοιγμάτων και των χρωμάτων. Στοχεύει στην αλήθεια για την αντίληψη των χώρων, των μορφών και των δομικών στοιχείων των κτηρίων αποβλέποντας και στον εκπαιδευτικό ρόλο των κτηρίων. Η διαμόρφωση βιοκλιματικών χαρακτηριστικών και η απόλυτη οικονομία στην κατασκευή αποτέλεσαν προϋποθέσεις για τη δημιουργία και τη βιωσιμότητα αυτού του έργου.
Ο Φέρων Οργανισμός είναι τοποθετημένος εξωτερικά στη περίμετρο των κτηρίων, εμφανής στις όψεις, με αποτέλεσμα να μην υπάρχουν δομικά στοιχεία εσωτερικά. Επιπλέον δημιουργεί σκίαστρα για το καλοκαίρι με κατάλληλες διαστάσεις και επιτρέπουν την πρόσβαση του ήλιου τον χειμώνα. Έτσι αυξάνονται τα ηλιακά κέρδη των χειμώνα και μειώνονται εντελώς το καλοκαίρι.
Το σχολικό συγκρότημα αποτελείται από τα παρακάτω κτήρια:
- Νηπιαγωγείο ισόγειο.
- Δημοτικό Σχολείο ισόγειο
- Γυμνάσιο ισόγειο
- Λύκειο διώροφο
- Κτήριο Εργαστηρίων όλων των σχολείων.
- Κεντρική Βιβλιοθήκη
- Κτήριο Διοίκησης
- Κτήριο Αίθουσας Πολλαπλών Χρήσεων, με εστιατόριο στον όροφο.
Ιατρείο.
ΑΜΕΑ
Όλο το συγκρότημα είναι μελετημένο και κατασκευασμένο έτσι ώστε οποιοδήποτε άτομο και με κάθε είδους ανάγκη να μπορεί να επισκεφθεί όλους τους χώρους ανεξαιρέτως χωρίς κανένα εμπόδιο. Δεν χρειάζεται να ανεβεί κανείς ούτε ένα σκαλοπάτι.
Φωτισμός
Ο φυσικός φωτισμός του χώρου επιδιώχθηκε να είναι ο μέγιστος δυνατός. Οι αίθουσες έχουν την αναγκαία προστασία από τον άμεσο ενοχλητικό φωτισμό, ενώ τα εργαστήρια και οι βιβλιοθήκες στηρίζονται στον διάχυτο βορινό κυρίως φωτισμό που αποδίδει καλύτερη ομοιομορφία στην ένταση. Επίσης, μέσω των λεγόμενων “ραφιών φωτισμού”, επιφανειών που ανακλούν το φυσικό φώς και το στέλνουν βαθύτερα στο χώρο, αποφεύχθηκε το φαινόμενο της θάμβωσης μέσα στις αίθουσες διδασκαλίας και στα γραφεία.
Ηχητική συμπεριφορά.
Το πρόβλημα του θορύβου στα σχολεία είναι γνωστό και βασικότατο.
Συντελεί αρνητικά στην απόδοση και επίδοση μαθητών και εκπαιδευτικών. Ουσιαστικά οφείλεται σε δύο κατηγορίες:
Σε εξωτερικούς και σε εσωτερικούς παράγοντες.
Εξωτερικοί παράγοντες δεν υπάρχουν στο ΑΞΙΟΝ διότι το συγκρότημα βρίσκεται εκτός της πόλης και το γύρω περιβάλλον είναι ήσυχο.
Ο εσωτερικός θόρυβος στους εκπαιδευτικούς χώρους, οφείλεται στην αντήχηση. Αντήχηση: Είναι η επανάληψη ενός ήχου λόγω ανάκλασης των ηχητικών κυμάτων στις επιφάνειες ενός κλειστού χώρου.
Οι μετρήσεις σε σχολικές αίθουσες χωρίς σωστή μελέτη και υλικά, δείχνουν πως οι ακουστικές συνθήκες δεν επιτρέπουν να γίνει κατανοητό περισσότερο από το μισό της ομιλίας και τούτο γιατί: για να συγκεντρωθεί ένας ακροατής, στον ομιλητή, όταν υπάρχει θόρυβος από υψηλή αντήχηση, αναγκάζεται να δαπανήσει μεγάλα ποσά ¨εγκεφαλικής ενέργειας¨. Ο ανθρώπινος εγκέφαλος αναγκάζεται να αναπτύξει μηχανισμούς προστασίας , απομάκρυνσης και απαλλαγής από την ενόχληση αυτή, έτσι επιστρατεύει μία ενεργοβόρα, διαδικασία ενεργούς ηχοακύρωσης με αποτέλεσμα την κόπωση. Αυτός είναι ο λόγος που σε μη μελετημένους ηχητικά χώρους ¨κουραζόμαστε¨ σε μια συγκέντρωση, μια ομιλία, ένα συνέδριο, μια συνάντηση κλπ.
Το φαινόμενο αυτό είναι απαράδεκτο σε σχολικούς χώρους γιατί επηρεάζει αρνητικά πρωτίστως την επίδοσή μαθητών και εκπαιδευτικών.
Στο συγκρότημα έγινε ειδική μελέτη από εξειδικευμένο επιστημονικό γραφείο ακουστικής και αντιμετωπίστηκε εξ αρχής η ηχητική συμπεριφορά όλων των χώρων. Στη καθημερινή πρακτική αυτό είναι ολοφάνερο. Δεν υπάρχει κανενός είδους κόπωση των μαθητών και των εκπαιδευτικών.
Χρώματα
Τα χρώματα επιλέχθηκαν από τη γκάμα των λεγόμενων βασικών με σκοπό να διεγείρουν τις εγκεφαλικές λειτουργίες ανάλογα με τον κάθε χώρο. Έτσι στις αίθουσες υπάρχουν τόνοι του κόκκινου και του κίτρινου πιο συχνά απ’ ότι στους χώρους ανάπαυσης και στο εστιατόριο, όπου κυριαρχούν οι τόνοι του πράσινου και του μπλε. Η εκ προθέσεως πολυχρωμία σκοπό της έχει να τονίσει τα δομικά στοιχεία από τα στοιχεία πλήρωσης και να παίξει εκπαιδευτικό ρόλο στη διαμόρφωση της αντίληψης του χώρου και του προσανατολισμού κυρίως στους μικρότερους μαθητές.
Έτσι το σχολείο έγινε ευχάριστο!

